Вентиляторные градирни

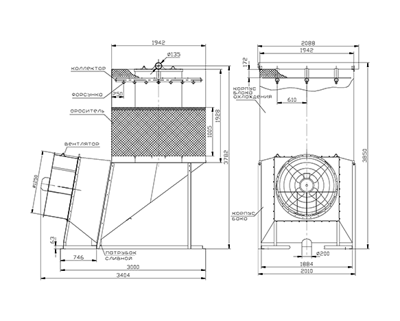
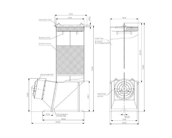
Технологическое оборудование вентиляторной градирни

Получить КП

Вентиляторные градирни «ЭКОТЭП»:

  • Индивидуальный подход к проектированию каждого объекта (выбор оптимального варианта установки охладителя)

  • Эффективные решения при техническом перевооружении систем оборотного водоснабжения (установка новых градирен СВГ на существующие фундаменты типовых градирен ВГ-50, ВГ-70 и т.д.)

  • Сборка и монтаж каркаса градирни осуществляется посредством болтовых соединений (быстрота сборки в любое время года, без применения сварочных и покрасочных работ)

  • Заводское горячеоцинкованное покрытие всех стальных элементов градирни (отсутствие необходимости в проведении ежегодных ремонтных работ по восстановлению антикоррозионного покрытия стальных элементов)

  • Возможность плавной регулировки охлаждающей способности (частотное регулирование работы вентилятора, посекционное отключение)

Нестеренко Ольга Александровна
Начальник проектного отдела

Проектирование вентиляторных градирен в ООО «ЭКОТЭП» это комплексная, детальная проработка всех разделов строительства. В ходе проектирования решаются следующие задачи:

  • разработка технических решений и эскизная проработка проекта;
  • конструктивные расчеты каркаса и несущих элементов градирни, конструирование основных узлов;
  • теплотехнические и гидротехнические расчеты;
  • построение пространственной 3D-модели градирни (металлический каркас, система водораспределения, лестницы и площадки
  • обслуживания, раскладка блоков оросителя и водоуловителя, жалюзи, обшивка перегородки, вентиляторный узел и т.д.);
  • выпуск проектной 2D-документации.
У вас есть вопрос по вентиляторной градирне?
Напишите нам - мы подробно всё расскажем

При создании новых градирен, а также технологического оборудования для них, специалисты компании ЭКОТЭП всегда придерживаются главного принципа, который вот уже почти 30 лет является нашим девизом – КАЧЕСТВО В ДЕТАЛЯХ.

Комплексная оценка условий эксплуатации оборудования позволяет нам создавать по-настоящему надежный продукт, рассчитанный на долгую и бесперебойную работу в самых экстремальных условиях эксплуатации. При создании градирен (а также внутреннего оборудования) все конструктивные и технологические решения обязательно принимаются исходя из специфики объекта эксплуатации, например: климатические особенности, качество оборотной и подпиточной воды, сейсмичность площадки строительства и другие местные условия эксплуатации.

При проектировании и производстве градирен мы уделяем внимание не только выбору материалов технологического оборудования (таких как: системы водораспределения, обшивки, водоразбрызгивающих устройств и других элементов охладителя), а также особо внимательно относимся к выбору марок стали из которых будет изготавливаться несущий каркас градирни и её вспомогательные конструкции. Учитывая климатические особенности нашей страны, в большинстве случаев для производства конструктивных элементов градирен нами используется легированная сталь, имеющая в своем составе добавки, улучшающие её ударную вязкость. Такие элементы способны обеспечить надежную и долговечную работу каркаса градирни под нагрузкой при особо низких температурах (ниже - 50 °С).



Быстрый выбор малой градирни

СВГ - К-8
Тепловой поток 46 кВт
Площадь поверхности оросителя 65 м2
Высота оросителя, h 525 м
Высота градирни, H 1969 м
Кол-во форсунок 2 шт.
№ вентилятора 5
Электродвигатель вентилятора (N, n) 0,37 кВт / 1500 мин-1
Масса, не более 125 кг
Ном. расход воды 8 м3/час
СВГ - К-12М, К-16
Тепловой поток 70 кВт — 95 кВт
Площадь поверхности оросителя 88 м2
Высота оросителя, h 525 м
Высота градирни, H 2457 м
Кол-во форсунок 2 шт. — 3 шт.
№ вентилятора 6,3
Электродвигатель вентилятора (N, n) 0,75 кВт / 1000 мин-1  —  1,1 кВт / 1500 мин-1
Масса, не более 231 кг
Ном. расход воды 12 м3/час — 16 м3/час
СВГ - К-20М, К24, К-28
Тепловой поток 120 кВт — 140 кВт — 160 кВт
Площадь поверхности оросителя 175 м2 — 130 м2 — 175 м2
Высота оросителя, h 1050 м
Высота градирни, H 2957 м
Кол-во форсунок 4 шт.
№ вентилятора 6,3
Электродвигатель вентилятора (N, n) 0,75 кВт / 1000 мин-1  —  1,1 кВт / 1500 мин-1
Масса, не более 288 кг
Ном. расход воды 20 м3/час — 24 м3/час — 28 м3/час
СВГ - К-32, К-50
Тепловой поток 190 кВт — 300 кВт
Площадь поверхности оросителя 230 м2 — 300 м2
Высота оросителя, h 525 м — 1050 м
Высота градирни, H 2860 м — 3360 м
Кол-во форсунок 6 шт. — 10 шт.
№ вентилятора 8
Электродвигатель вентилятора (N, n) 3,0 кВт / 1500 мин-1
Масса, не более 435 кг — 520 кг
Ном. расход воды 32 м3/час — 50 м3/час
СВГ - К-60М, К-75
Тепловой поток 350 кВт — 450 кВт
Площадь поверхности оросителя 450 м2
Высота оросителя, h 525 м
Высота градирни, H 3210 м
Кол-во форсунок 12 шт.
№ вентилятора 12,5
Электродвигатель вентилятора (N, n) 4,0 кВт / 750 мин-1  —  7,5 кВт / 1000 мин-1
Масса, не более 844 кг
Ном. расход воды 60 м3/час — 75 м3/час
СВГ - К-90М, К-120
Тепловой поток 550 кВт — 700 кВт
Площадь поверхности оросителя 756 м2
Высота оросителя, h 1050 м
Высота градирни, H 3710 м
Кол-во форсунок 21 шт.
№ вентилятора 12,5
Электродвигатель вентилятора (N, n) 4,0 кВт / 750 мин-1  —  7,5 кВт / 1000 мин-1
Масса, не более 990 кг
Ном. расход воды 90 м3/час — 120 м3/час
СВГ - К-170
Тепловой поток 1000 кВт
Площадь поверхности оросителя 1000 м2
Высота оросителя, h 1050 м
Высота градирни, H 3876 м
Кол-во форсунок 35 шт.
№ вентилятора 14
Электродвигатель вентилятора (N, n) 11,0 кВт / 1000 мин-1
Масса, не более 1650 кг
Ном. расход воды 170 м3/час
СВГ - К-280
Тепловой поток 1650 кВт
Площадь поверхности оросителя 1869 м2
Высота оросителя, h 1050 м
Высота градирни, H 4115 м
Кол-во форсунок 48 шт.
№ вентилятора 16
Электродвигатель вентилятора (N, n) 15,0 кВт / 1000 мин-1
Масса, не более 2100 кг
Ном. расход воды 280 м3/час
СВГ - К-400
Тепловой поток 2325 кВт
Площадь поверхности оросителя 2571 м2
Высота оросителя, h 1050 м
Высота градирни, H 4458 м
Кол-во форсунок 72 шт.
№ вентилятора 20
Электродвигатель вентилятора (N, n) 22,0 кВт / 750 мин-1
Масса, не более 3240 кг
Ном. расход воды 400 м3/час
Вентиляторные
Поставка
Эжекционные
ПАО «Северсталь»
Подробнее
Вентиляторные
Поставка
Ивановские ПГУ
Подробнее
Вентиляторные
Поставка
АО «ГАЗПРОМНЕФТЬ-МНПЗ»
Подробнее
За всё время существования компании мы реализовали множество проектов
Все объекты Референс-лист